10套占地120平的农村自建房户型图,30万就能盖一栋,父母定喜欢
10套占地120平的农村自建房户型图,30万就能盖一栋,父母定喜欢
农村建房,占地120平左右的户型图很受大家的欢迎。造价不高很是实用。
今天住宅公园就给大家带来10套占地120平左右的农村户型图,效果图、平面图奉上,准备盖房的赶紧收藏去盖!
户型一:
占地尺寸:11.7m*10m
占地面积:116㎡
建筑面积:220㎡

平面布局图:


户型二
占地尺寸:9.5m*8.8m
占地面积:85.2㎡
建筑面积:173.3㎡

平面布局图:


户型三
占地尺寸:11.6m*9.6m
占地面积:106.4㎡
建筑面积:305.5㎡

平面布局图:



户型四
占地尺寸:8.4m*11.7m
占地面积:112㎡
建筑面积:300㎡

平面布局图:



户型五
占地尺寸:8.9m*11.7m
占地面积:113.1㎡
建筑面积:309.6㎡

平面布局图:



户型六
占地尺寸:9.3m*12.7m
占地面积:118㎡
建筑面积:240㎡

平面布局图:



户型七
占地尺寸:12.4m*8m
占地面积:101.6㎡
建筑面积:203.3㎡

平面布局图:


户型八
占地尺寸:12.7m*8.5m
占地面积:119㎡
建筑面积:243㎡

平面布局图:


户型九
占地尺寸:9.9m*11.4m
占地面积:105㎡
建筑面积:215㎡

平面布局图:


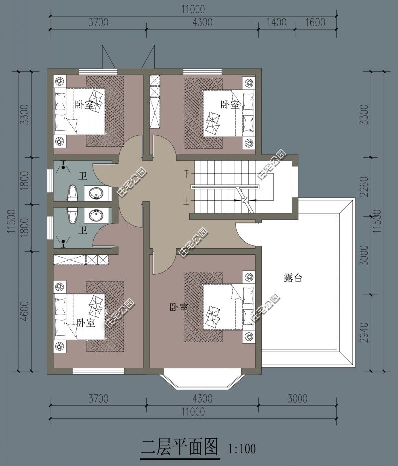
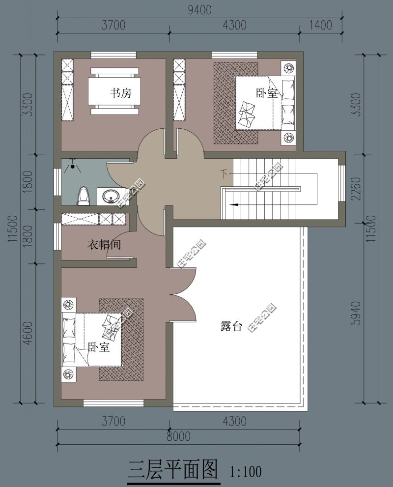
户型十
占地尺寸:11m*11.5m
占地面积:117㎡
建筑面积:288㎡

平面布局图:



看完这10套农村小户型,大家更喜欢哪一套呢?
关注本号,每天都有农村自建房户型图欣赏。
-
- 走近茅箭区——诗情画意紫薇岛
-
2026-01-04 14:11:50
-
- 阵雨!中雨!大雨!陕西最新预报!西安下雨时间确定
-
2026-01-04 14:09:36
-
- 一起探索蔚蓝世界,走进上海海昌海洋公园
-
2026-01-04 14:07:21
-
- 三亚皇后湾:人少景美的原始渔村,饱览鹿城最美海湾风光
-
2026-01-04 14:05:07
-
- 芜湖市概况
-
2026-01-01 23:19:53
-
- 闺蜜基友 | 超心动的闺蜜兄弟基友头像
-
2026-01-01 04:16:15
-
- 摇滚老炮迪克牛仔:绰号“老爹”,23年前火遍全国,如今走穴为生
-
2026-01-01 04:14:00
-
- 通过船只最多的国际运河——基尔运河
-
2026-01-01 04:11:46
-
- 从2023年我国的人口出生数据看未来50年我国每年的出生人口预测
-
2026-01-01 04:09:32
-
- 广州市白云工商技师学院2023年春季招生简章公布
-
2025-12-31 11:48:39
-
- 爱泼斯坦的名单及那些讳莫如深的中国公知们!
-
2025-12-31 11:46:25
-
- 你身边有“AI同事”吗?国内多个行业已有“AI员工”上岗
-
2025-12-31 11:44:11
-
- 国军抗战之徐州会战1 血战台儿庄
-
2025-12-31 11:41:57
-
- 烟台9大旅游景点,少去哪1个都是遗憾
-
2025-12-31 11:39:42
-
- 16个最美旅游美景,你一共去过几个?最喜欢哪个景点
-
2025-12-31 11:37:28
-
- 当年揭露“三鹿奶粉”的上海记者,4年后辞职,17年后变成了这样
-
2025-12-31 11:35:14
-
- 传奇的奥地利女皇“欧洲祖母”-玛利亚特蕾西亚(二)
-
2025-12-31 11:32:59
-
- “省二青会”提前开赛项目在我州激战正酣
-
2025-12-31 11:30:45
-
- 韩非的死冤不冤
-
2025-12-31 11:28:30
-
- 《水浒传》中努力钻研业务的洪太尉,怎么就放走妖魔了呢?
-
2025-12-31 11:26:16



联邦制国家与中央集权制国家的简介
肾虚公子——内斯塔